紫林湾项目是石家庄日晔兴房地产在石家庄开发过大明公寓、紫玉名苑、紫鑫苑之后又一次开发的项目。项目位于石家庄市长安区和平路与天山大街交口西北角,紧邻石津灌渠。用地面积近432亩,分为2期开发;西侧为国家羽毛球训练基地和别墅区;首期占地350亩,分别是洋房和高层;高层住宅规划为东方意境ARTDECO风格,洋房规划建设为新古典主义建筑风格。建筑户型面积区间为85-300㎡。 项目规划中采取同纬度树种成树移植,部分树种现已种植于项目外围,一部分于同纬度其他地域成树移植。
基本信息
规划信息
配套信息
销售信息
优选顾问推荐
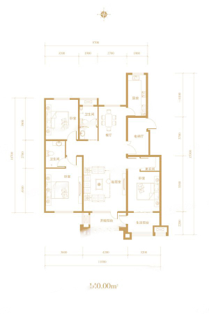
各个空间户型方正,方便室内家具布置;全明通透户型,居住舒适度较高,整个空间采光充足,利于后期居住;卫生间门朝向主要活动区域,私密性一般;各个功能区的尺寸比例规范,布局合理,能很好地满足日常功能需求,整体空间开阔,采光充足,居住舒适度好;公摊高于15%且低于25%,符合住宅公摊正常范围。
整体户型方正,活动区域开阔,居住舒适度高;整个空间全明通透,采光良好,同时利于居住空间通风;卫生间门朝向主要活动区域;各个功能区的尺寸比例规范,布局合理,能很好地满足日常功能需求,整体空间开阔,采光充足,居住舒适度好;公摊高于15%且低于25%,符合住宅公摊正常范围。

楼盘开盘、降价、优惠等信息,将会在第一时间短信通知您!
置业专家将在2小时内与您联系(8点-23点),请保持电话畅通。
请验证手机号验证码完成提交
置业专家将在2小时内与您联系(8点-23点),请保持电话畅通。
如当前手机号遗失,请联系0755-33526610进行人工修改
如当前手机号遗失,请联系0755-33526610进行人工修改
此楼盘如有优惠/变价通知,我们会及时通知您!
138****8965已经申请
137****8955已经申请
157****4365已经申请
183****8115已经申请
187****5968已经申请
159****8233已经申请