融创裕华壹号项目位于京珠西街以西,槐安路以南,东二环以东,东岗路以北,2017年2月14日石家庄弘城房地产开发有限公司以6.62亿竞得2016112号地。主推三室四室户型,建筑面积区间为洋房:148--282㎡,高层:105-143㎡。 融创裕华壹号扼守裕华东二环之地,低密花园洋房,通达东二环、槐安东路、京珠高速,贯通石门内外资源,紧邻在建中地铁3号线三教堂站,与在建中的地铁1号线、2号线轻松换乘。拥揽绿洲公园、东环公园、槐北公园,秉承天籁受自然风韵优养;紧邻万达广场、建华城市广场、联邦商圈三大商业配套,资源丰富;项目周边河北医大第一医院、省儿童医院、省二院东院等六大医院,为健康护航
基本信息
规划信息
配套信息
销售信息
优选顾问推荐
待定
待定
待定
待定
待定
待定
待定
27000元/平
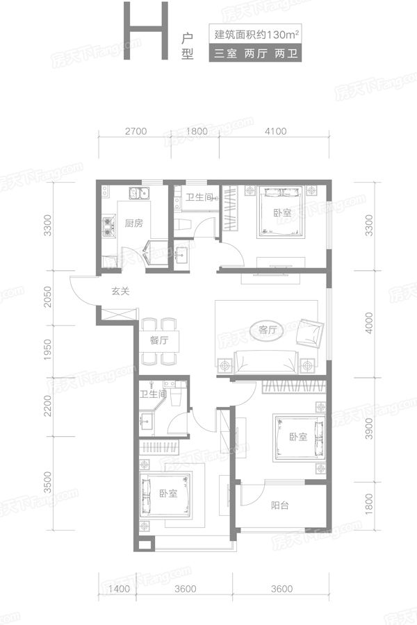
整体户型方正,活动区域开阔,居住舒适度高;整个空间全明通透,采光良好,同时利于居住空间通风;整个户型空间布局合理,做到了干湿分离、动静分离,方便后期生活;客厅、卧室、卫生间和厨房等主要功能间的尺寸以及比例适中,有利于采光和通风,居住起来舒适、方便;公摊高于15%且低于25%,符合住宅公摊正常范围。
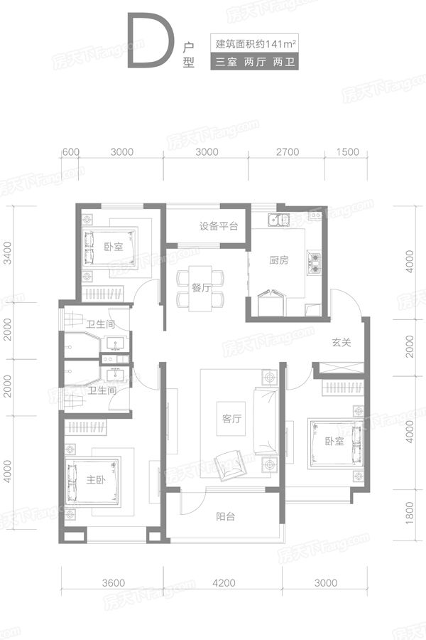
各个空间户型方正,后期空间利用率高;全明通透户型,居住舒适度较高,整个空间采光充足,利于后期居住;整体空间布局合理,能够保证动静分离和居室通风,方便使用;各个功能区的尺寸比例规范,布局合理,能很好地满足日常功能需求,整体空间开阔,采光充足,居住舒适度好;公摊高于15%且低于25%,符合住宅公摊正常范

楼盘开盘、降价、优惠等信息,将会在第一时间短信通知您!
置业专家将在2小时内与您联系(8点-23点),请保持电话畅通。
请验证手机号验证码完成提交
置业专家将在2小时内与您联系(8点-23点),请保持电话畅通。
如当前手机号遗失,请联系0755-33526610进行人工修改
如当前手机号遗失,请联系0755-33526610进行人工修改
此楼盘如有优惠/变价通知,我们会及时通知您!
138****8965已经申请
137****8955已经申请
157****4365已经申请
183****8115已经申请
187****5968已经申请
159****8233已经申请